
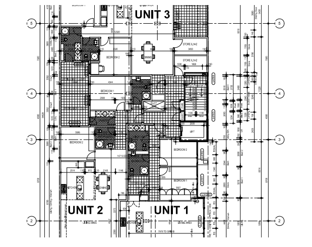
Commercial Construction
Lee James Construction will undertake all commercial construction and is suited to building multi storey apartments, mixed use buildings, offices, factories, guest homes, hotels, strata maintenance and upgrading commercial buildings or maintaining.